企业档案  
企业名称:成都深冷科技有限公司
企业类型: 制造业
企业行业:仪器仪表
企业地址:成都郫县成都现代工业港港北四路355号
资料认证情况
 
企业营业执照等资料未认证立刻认证
 
 联系信息  
联 系 人: 李发文 先生  (部长)
-- 机: 15196677898
-- 话: 86- 028- 87893658
-- 真: 86- 028- 87893650
Email: shenglengkeji@163.com
QQ: 1304710350 
 公司简介  
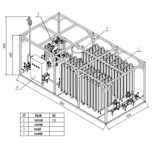
成都深冷科技有限公司是成都深冷空分设备工程有限公司的投资企业。      公司致力于LNG/L-CNG加气站以及LNG气化站、大型LNG储罐等LNG应用工程项目的设计、制造和销售。     公司拥有一批多年从事深冷储运装备与控制技术的高级专门人才。公司开发的BQ系列LNG加气站标准泵撬(包括基本型、调饱和型、防风沙型等)具有流程合理、管路布置简洁、操作维护方便等特点。公司已获得“具有BOG回收功能的LNG加气站无泵充装技术”及“具有多功能空温式加热装置的LNG加气站”等多项专利。在大型LNG储罐方面,公司已完成多套包括5000m3LNG常压储罐在内的大型LNG储罐项目。 [详细]
 企业产品  
 企业荣誉 更多 
    暂无数据